
programme /
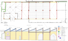
. protocole de restauration de la halle construite en ciment armé selon le procédé Cottancin
. faisabilité de réhabilitation du site
Travaillant à la restauration de l’église Saint-Jean de Montmartre, construite en ciment armé selon le procédé de l’ingénieur Paul Cottancin, l’agence 1090 a été consultée par la ville de Montreuil pour étudier la faisabilité de restauration de la halle Guët, unique édifice industriel construit selon le même brevet par l’architecte Charles Guët.
Intégrée au sein d’un important ancien site industriel et jouxtant le site naturel protégé des « murs à pêches » de Montreuil, le projet de restauration et de réutilisation de la halle Guët constitue un défi technique et urbain.
époque / XXe siècle
protection / patrimoine XXe
superficie / 350 m2
maitrise d’ouvrage / ville de Montreuil
budget / nc
équipe / ECMH / laboratoire matériaux
Gwenaël Delhumeau / historien de l’architecture
phase / diagnostic terminé









